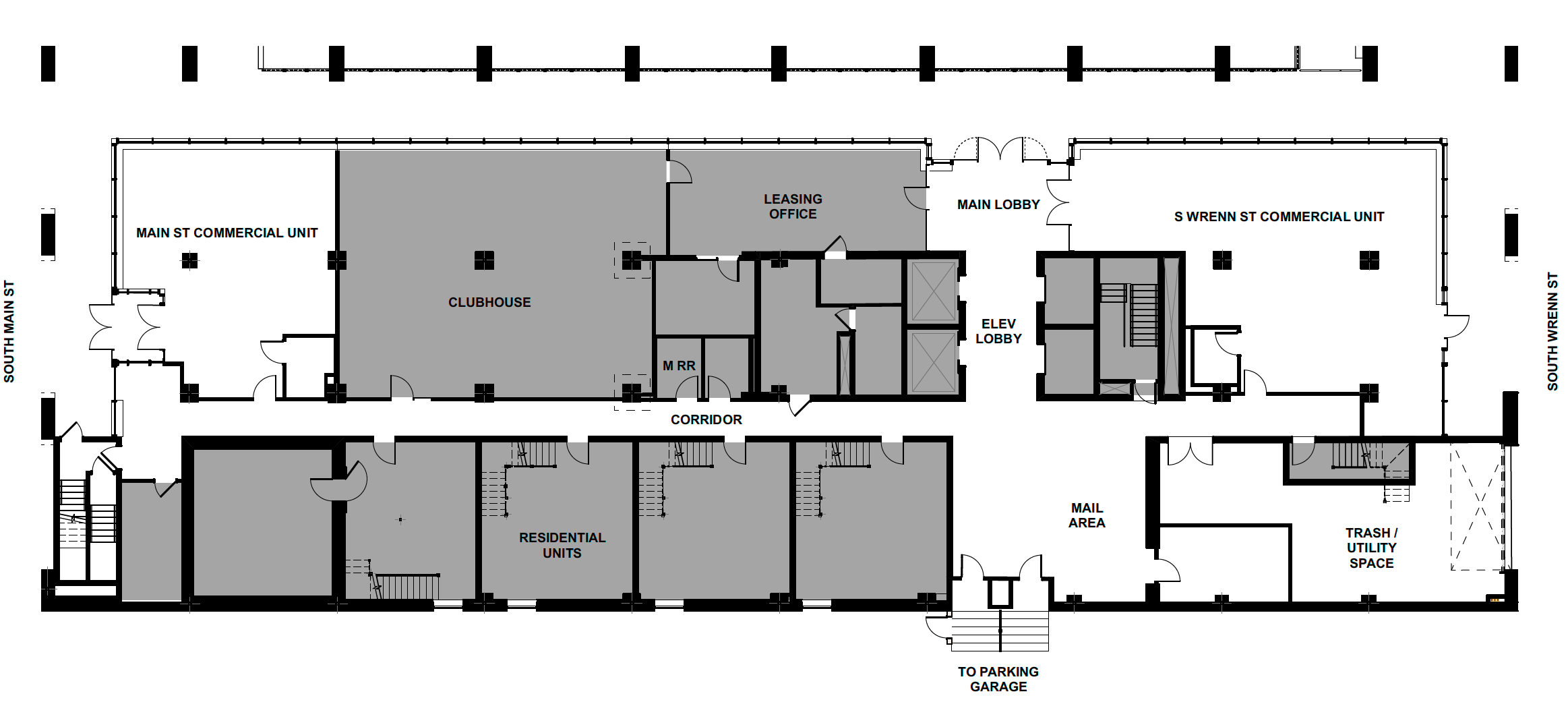
Elwood on Main
Listed on the National Register of Historic Places, the nine-story Elwood on Main is being converted into a 143-unit luxury multifamily community with first-class amenities and neighborhood commercial spaces.
Under Construction
A catalyst to High Point’s downtown revitalization.
Federal historic tax credits and the North Carolina Mill Rehabilitation Tax Credit make the project a viable opportunity for redevelopment.
Inspired images
We're in the process of finalizing amenity and interior design at Elwood on Main. Here, we provide images of other properties that inspired our design efforts for Elwood on Main. Check back soon for updates.

